Dokumentace zdolávání požárů
Dokumentace zdolávání požáru (DZP): Máte ji v pořádku?
Potřebujete pro svůj objekt nechat zpracovat nebo aktualizovat Dokumentaci zdolávání požáru (DZP)? Pokud provozujete činnosti se zvýšeným, zákon mluví jasně. My se postaráme o to, aby vaše dokumentace byla nejen v souladu s legislativou, ale především skutečnou oporou pro hasiče v případě nouze.
Co je to vlastně DZP a k čemu slouží?
Dokumentace zdolávání požáru není jen „další papír pro úřady". Je to klíčový podklad pro jednotky požární ochrany. Pokud u vás začne hořet, hasiči díky DZP okamžitě vědí, kde jsou hlavní uzávěry energií, kde najdou zdroje vody, jak jsou rozděleny požární úseky nebo kde se nacházejí nebezpečné látky.
Zpracování DZP je povinné pro objekty se složitými podmínkami pro zásah (dle § 18 vyhlášky č. 246/2001 Sb.).
Typicky jde o:
- Výškové budovy a obchodní centra.
- Nemocnice, školy a domovy pro seniory.
- Průmyslové haly, sklady a chemické provozovny.
- Objekty s velkým počtem osob (shromažďovací prostory).
Co vše pro vás v rámci DZP připravíme?
Zpracování provádíme kompletně „na klíč" v souladu se zákonem o požární ochraně (č. 133/1985 Sb., § 6b).
Naše DZP obsahuje dvě povinné části:
- Textová část: Podrobný popis objektu, přístupových cest, hasebních látek a evakuačních postupů.
- Grafická část: Přehledné plány podlaží, situační výkresy a vyznačení nebezpečných zón, které hasičům umožní bleskovou orientaci.
- Schválení u HZS: Dokumentaci s vámi projdeme a zajistíme její odsouhlasení příslušným Hasičským záchranným sborem.
Působíme po celé ČR: Od Ostravy po Prahu
Náš tým odborně způsobilých osob (OZO) se nezastaví před žádnou vzdáleností. Ať už sídlíte kdekoli, přijedeme k vám, objekt zaměříme a dokumentaci vypracujeme.
Kde nejčastěji zpracováváme DZP?
- Moravskoslezský kraj: Ostrava, Frýdek-Místek, Havířov, Karviná.
- Hlavní město: Praha a okolí.
- Další regiony: Brno, Olomouc, Plzeň, Liberec, České Budějovice a další města po celé České republice.
Proč zvolit pro DZP právě nás?
- Zkušenosti z terénu: Nejsme jen teoretici. Víme, co hasiči při zásahu skutečně potřebují vidět.
- Rychlost a kvalita: Termíny držíme, kvalitu garantujeme.
- Komplexní servis: Kromě DZP pro vás vyřešíme i PBŘ, požární řády nebo školení zaměstnanců.
Tip: Nezapomínejte, že DZP se musí pravidelně aktualizovat při každé změně v objektu nebo v technologii (např. po instalaci FVE nebo změně dispozic).
Naše reference (příklady naší práce)
Zde je vzorový text, který si doplňte svými konkrétními projekty:
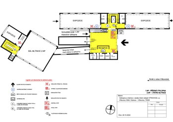
Futureum Vítkovice, Ostrava: Kompletní zpracování DZP pro nové výstavní prostory bývalé výklopny a mlýnice Vítkovických železáren s instalovanou technologií FVE.
Administrativní budova Mozarteum, Urbánkův dům, Praha: Kompletní DZP pro objekt kulturní památky z roku 1913, nyní sloužící jako administrativní prostory.
Charitní dům pokojného stáří sv. Františka, Bohumín: Grafické plány a textová část dokumentace zdolávání požáru pro objekt domova s pečovatelskou službou.
Sociální služby s klubem pro mladé, Děčín: DZP pro objekt provozující různé sociální služby.
Chcete nezávaznou cenovou nabídku?
Máte dotaz nebo chcete vědět, kolik by zpracování DZP stálo právě u vás? Zavolejte nám nebo napište mail :-).
